fr

Documentations - Dessins

Produit
Type de dessin
Exécutions de porte
Hauteur d'entraînement de la porte
Imposte de porte
Partie latérale de la porte
Vitrage de porte
Langue
Critère de recherche

Pour obtenir plus de résultats lorsque vous utilisez des mots clés, utilisez un astérisque * comme caractère de remplacement.

THERMCORD3, TSA-V, coupe verticale avec partie fixe
THERMCORD3, TSA-V, coupe verticale avec partie fixe

THERMCORD3, TSA-V, coupe verticale avec partie fixe avec poutre, applique sur linteau, hauteur d'entraînement de la porte: 150

DXF | FR
20/03/2024
télécharger
THERMCORD3, TSA-V, coupe verticale sans partie fixe
THERMCORD3, TSA-V, coupe verticale sans partie fixe

THERMCORD3, TSA-V, coupe verticale sans partie fixe avec poutre, applique sur linteau, hauteur d'entraînement de la porte: 150

DXF | FR
20/03/2024
télécharger
TC3, TSA-V, coupe verticale avec partie fixe
TC3, TSA-V, coupe verticale avec partie fixe

THERMCORD3, TSA-V, coupe verticale avec partie fixe avec poutre, applique sur linteau, hauteur d'entraînement de la porte: 200

DXF | FR
20/03/2024
télécharger
THERMCORD3, TSA-V, coupe verticale sans partie fixe
THERMCORD3, TSA-V, coupe verticale sans partie fixe

THERMCORD3, TSA-V, coupe verticale sans partie fixe avec poutre, applique sur linteau, hauteur d'entraînement de la porte: 200

DXF | FR
20/03/2024
télécharger
THERMCORD3, TSA-V, coupe verticale avec partie fixe
THERMCORD3, TSA-V, coupe verticale avec partie fixe

THERMCORD3, TSA-V, coupe verticale avec partie fixe avec poutre, montage entre murs, hauteur d'entraînement de la porte: 150

DXF | FR
20/03/2024
télécharger
THERMCORD3, TSA-V, coupe verticale avec partie fixe
THERMCORD3, TSA-V, coupe verticale avec partie fixe

THERMCORD3, TSA-V, coupe verticale avec partie fixe avec poutre, montage entre murs, hauteur d'entraînement de la porte: 200

DXF | FR
20/03/2024
télécharger
STA Coupe verticale avec partie fixe
STA Coupe verticale avec partie fixe

Système de profilé: 32 mm
Hauteur d'entraînement de la porte: 108 mm
avec poutre

DXF | FR
101193D
télécharger
E-TSA-R Coupe horizontale sans partie fixe
E-TSA-R Coupe horizontale sans partie fixe

Système de profilé: 20 mm
avec poutre

DXF | FR
101363B
télécharger
E-TSA-L Coupe horizontale avec partie fixe
E-TSA-L Coupe horizontale avec partie fixe

Système de profilé: 32 mm
Montage sur linteau

DXF | FR
101372B
télécharger
THERMCORD RC3, D-STA, coupe horizontale avec partie fixe
THERMCORD RC3, D-STA, coupe horizontale avec partie fixe

THERMCORD RC3, D-STA, coupe horizontale avec partie fixe avec poutre, montage entre murs

DXF | FR
102-10179
télécharger
THERMCORD RC3, D-STA, coupe horizontale avec partie fixe
THERMCORD RC3, D-STA, coupe horizontale avec partie fixe

THERMCORD RC3, D-STA, coupe horizontale avec partie fixe avec poutre, applique sur linteau

DXF | FR
102-10180
télécharger
THERMCORD RC3, D-STA, coupe horizontale sans partie fixe avec poutre, applique sur linteau
THERMCORD RC3, D-STA, coupe horizontale sans partie fixe avec poutre, applique sur linteau

THERMCORD RC3, D-STA, coupe horizontale sans partie fixe avec poutre, applique sur linteau

DXF | FR
102-10181
télécharger
record C 127 X - sample and general approval drawings
record C 127 X - sample and general approval drawings

record C 127 X - sample and general approval drawings

DWG | MULTI
05/03/2024
télécharger
THERMCORD3, STA Coupe verticale sans partie fixe
THERMCORD3, STA Coupe verticale sans partie fixe

THERMCORD3, STA Coupe verticale sans partie fixe H150 wall mounting

DXF | FR
102-10294
télécharger
THERMCORD3, D-STA Coupe horizontale Sans partie fixe
THERMCORD3, D-STA Coupe horizontale Sans partie fixe

THERMCORD3, D-STA Coupe horizontale Sans partie fixe H150 wall mounting

DXF | FR
102-10295
télécharger
THERMCORD3, Coupe horizontale sans partie fixe
THERMCORD3, Coupe horizontale sans partie fixe

THERMCORD3, Coupe horizontale sans partie fixe H150 wall mounting

DXF | FR
102-10297
télécharger
THERMCORD3, E-STA-L Coupe horizontale sans partie fixe
THERMCORD3, E-STA-L Coupe horizontale sans partie fixe

THERMCORD3, E-STA-L Coupe horizontale sans partie fixe H150 wall mounting

DXF | FR
102-10298
télécharger
THERMCORD3, STA, Typ U FR, Coupe verticale sans partie fixe
THERMCORD3, STA, Typ U FR, Coupe verticale sans partie fixe

THERMCORD3, STA, Typ U FR, Coupe verticale sans partie fixe avec poutre, applique sur linteau, hauteur d'entraînement de la porte: H150

DXF | FR
102-10303
télécharger
THERMCORD3, STA, Typ U FR, Coupe verticale avec partie fixe
THERMCORD3, STA, Typ U FR, Coupe verticale avec partie fixe

THERMCORD3, STA, Typ U FR, Coupe verticale avec partie fixe avec poutre, applique sur linteau, hauteur d'entraînement de la porte: H150

DXF | FR
102-10304
télécharger
D-STA, Coupe horizontale avec 2 parties fixes
D-STA, Coupe horizontale avec 2 parties fixes

D-STA, Coupe horizontale avec 2 parties fixes avec poutre, montage entre murs

DXF | FR
102-10170
télécharger
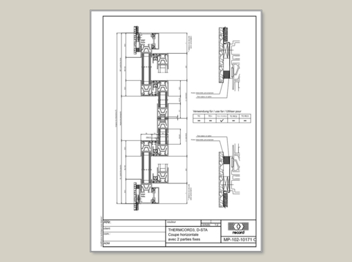
D-STA, Coupe horizontale avec 2 parties fixes
D-STA, Coupe horizontale avec 2 parties fixes

D-STA, Coupe horizontale avec 2 parties fixes avec poutre, montage en applique

DXF | FR
102-10171
télécharger
E-STA-R, Coupe horizontale avec 1 partie fixe droite
E-STA-R, Coupe horizontale avec 1 partie fixe droite

E-STA-R, Coupe horizontale avec 1 partie fixe droite avec poutre, montage entre murs

DXF | FR
102-10187
télécharger
E-STA-R, Coupe horizontale sans partie fixe
E-STA-R, Coupe horizontale sans partie fixe

E-STA-R, Coupe horizontale sans partie fixe avec poutre, montage en applique

DXF | FR
102-10188
télécharger
E-STA-L, Coupe horizontale sans partie fixe
E-STA-L, Coupe horizontale sans partie fixe

E-STA-L, Coupe horizontale sans partie fixe avec poutre, montage en applique

DXF | FR
102-10191
télécharger
E-STA-L, Coupe horizontale avec 1 partie fixe gauche
E-STA-L, Coupe horizontale avec 1 partie fixe gauche

E-STA-L, Coupe horizontale avec 1 partie fixe gauche avec poutre, montage entre murs

DXF | FR
102-10193
télécharger
E-STA-R, Coupe horizontale avec 1 partie fixe droite
E-STA-R, Coupe horizontale avec 1 partie fixe droite

E-STA-R, Coupe horizontale avec 1 partie fixe droite avec poutre, montage en applique

DXF | FR
102-10195
télécharger
E-STA-L, Coupe horizontale avec 1 partie fixe gauche
E-STA-L, Coupe horizontale avec 1 partie fixe gauche

E-STA-L, Coupe horizontale avec 1 partie fixe gauche avec poutre, montage en applique

DXF | FR
102-10196
télécharger
D-STA, Coupe horizontale avec 1 partie fixe droite
D-STA, Coupe horizontale avec 1 partie fixe droite

D-STA, Coupe horizontale avec 1 partie fixe droite avec poutre, montage en applique

DXF | FR
102-10204
télécharger
D-STA, Coupe horizontale avec 1 partie fixe gauche
D-STA, Coupe horizontale avec 1 partie fixe gauche

D-STA, Coupe horizontale avec 1 partie fixe gauche avec poutre, montage en applique

DXF | FR
102-10206
télécharger
D-STA, Coupe horizontale sans parties fixes
D-STA, Coupe horizontale sans parties fixes

D-STA, Coupe horizontale sans parties fixes avec poutre, montage en applique

DXF | FR
102-10207
télécharger
Loading...